LUX-ferieleiligheter

Våre lux leiligheter er på ca. 100 m2 og inneholder 4 soverom, stue, kjøkken, 2 bad, vaskemaskin etc. Stor terrasse og balkong mot sjø og strand.

Lux-leiligheter med fantastisk panoramautsikt over skogsfjorden.

mones-lux-leiligheter

Foruten stue og kjøkken, inneholder leilighetene blant annet 4 soverom, TV-stue, 2 bad med dusj, vaskemaskin/tørketrommel og to store solrike terrasser.

Ellers kan nevnes TV og trådløst Internett. Leilighetene er beregnet for 8-10 personer.

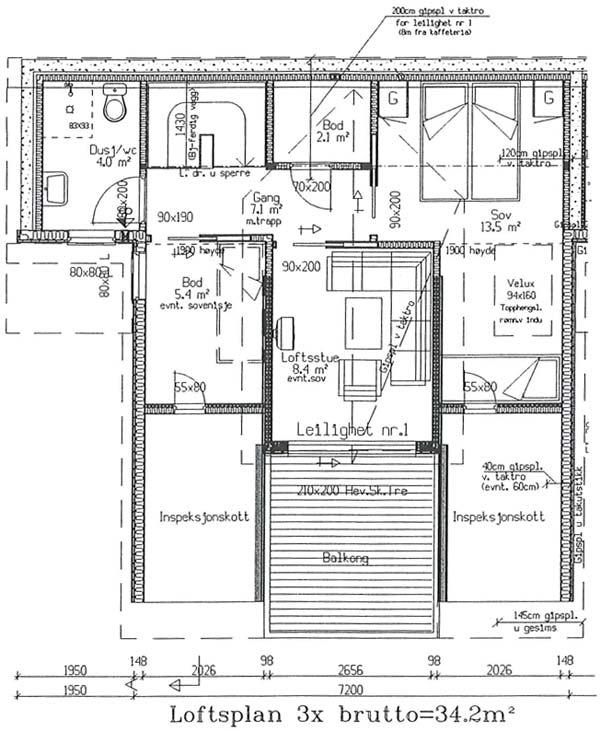
Romtegninger:
Klikk på bildene for å se dem i store versjoner

Mones Feriesenter

Mandalsveien 2687, 4513 Mandal.
Adkomst: E 39: 1,5 km vest for Mandal tar du av til venstre ved Mones Feriesenter.

Telefon: 38 26 49 00
Mobil: 90 51 95 57
Send e-post

octi-liten-logo.png